Infos techniques
Intervention : 2014
Phase : avp/pc – pro – dce
Programme : Logement – coeur d’îlot privatif
Site : Saint-Herblain (Nantes)
Client : Lamotte promoteur
Surface : 4750m²
Associés :
- A/NM/A – mandataire
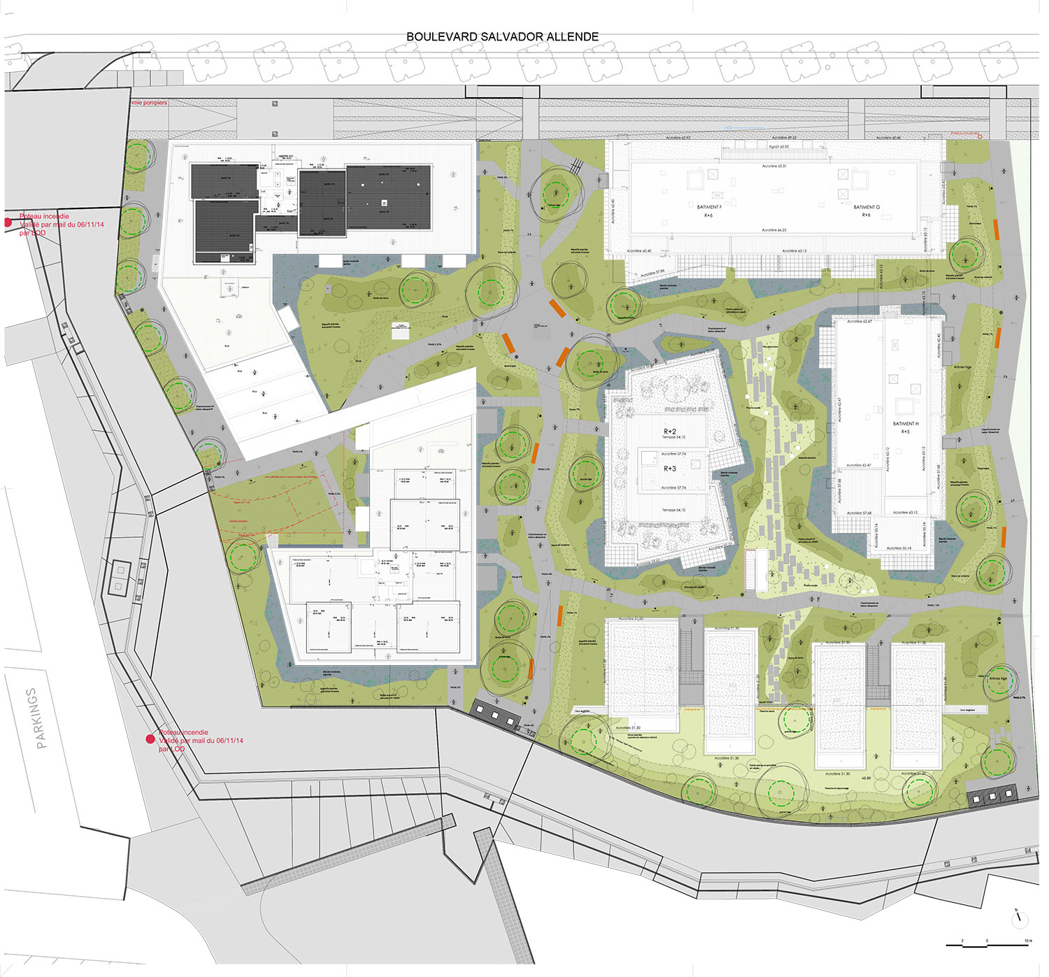
Présentation
Le rapport entre espaces privés et publics, espaces domestiques et communs, est placé au centre des préoccupations du projet et parle de «collaboration» entre les différentes entités.
Nous nous sommes approprié cette notion «de collaboration», tout au long de notre conception tant dans le rapport à «l’existant», que dans l’installation des continuités paysagères et urbaines, à l‘échelle du bâti comme à celle du piétons.
Le projet offre de cheminer le long des venelles aux ambiances singulières, de découvrir des passages ouverts ou couverts, des intérieurs d’ilot
atypiques, des ruptures d’échelle tout en réalisant une couture urbaine avec les quartiers voisins. Par la création de venelles transversales et de passages longitudinaux à travers les nouvelles constructions, ce parcours urbain riche, divers et convivial favorise les liens entre les quartiers entre les nouveaux bâtiments et entre les habitants eux-mêmes.
Ici le vivre ensemble prend tout son sens.
C’est bien un nouveau quartier où la densité et la qualité de vie, où le confort domestique et le parcours quotidien est à l’échelle humaine.













